PAVO: Bürogebäude am Mainzer Kisselberg
Im Innovationspark Kisselberg, an einem der sichtbarsten Wirtschaftsstandorte der Landeshauptstadt Mainz, entsteht in der ersten Reihe mit PAVO ein zukunftsweisendes Bürogebäude. Das Projekt vereint moderne Architektur mit nachhaltiger Gebäudetechnik und bietet rund 5.700 m² flexible Mietflächen – maßgeschneidert für Unternehmen, die Wert auf Effizienz, Klimaschutz und Standortqualität legen.
Objektart
Bürogebäude
Grundstücksgröße
ca. 8.300 m²
Mietfläche
ca. 5.700 m²
PKW-Stellplätze
ca. 76
Ihr neuer Arbeitsplatz mit Zukunft
PAVO Kisselberg bietet Raum für moderne Arbeitswelten in Bestlage: kurze Wege zum Hauptbahnhof, zur Autobahn und in die Mainzer Innenstadt treffen auf ein Umfeld mit international agierenden Unternehmen, Hochschulen und einem angrenzenden Businesshotel mit 183 Zimmern. Ideal für Unternehmen mit Weitblick.
Nachhaltig arbeiten – langfristig profitieren
Das technische Konzept setzt auf Geothermie, Photovoltaik und Free Cooling. Eine energieeffiziente Bauweise mit Betonkernaktivierung, Holzfaserdämmung (optional) und intelligenter Beschattung sorgt für optimale Arbeitsbedingungen – das ganze Jahr über. E-Mobilität ist flächendeckend vorbereitet und die Tiefgarage bietet neben den Außenstellplätzen zusätzlich 47 weitere PKW-Stellplätze.
Flexibel nutzbar, wirtschaftlich gedacht
Dank modularer Grundrissplanung, Systemtrennwänden und optimierter Flächeneffizienz lässt sich jede Einheit bedarfsgerecht gestalten – heute und morgen. Ob Einzelbüros, Open Space oder Kombilösungen: PAVO passt sich Ihren Anforderungen an.
Fazit: Arbeiten, wo Zukunft gemacht wird
PAVO ist mehr als ein Bürogebäude – es ist ein Statement für nachhaltiges Wirtschaften, innovative Arbeitskultur und exzellente Lage. Willkommen an der neuen Adresse für erfolgreiche Unternehmen in Mainz.
This property is developed according to the criteria GROW – Green offices work.
Büroflächen
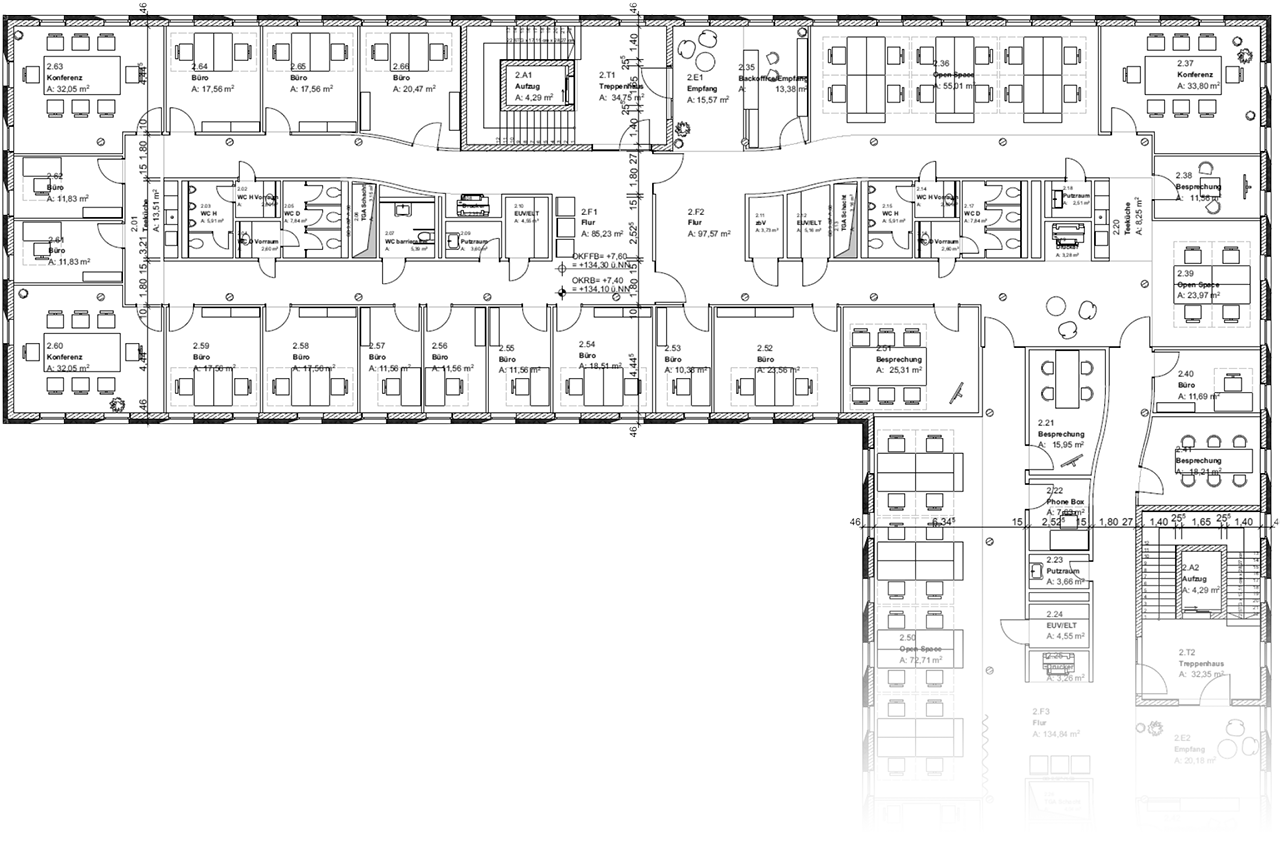
Grundriss
Die Grundrisse werden individuell nach Mieterwünschen geplant. Systemwände ermöglichen den Umbau auch im laufenden Betrieb bei veränderten Bedarf.

Highlights
- Systemtrennwände
- Betonkernaktivierung
- Photovoltaikanlagen
- Erdwärme / Geothermie
- Innovatives Haustechnikkonzept
- Hochwertige Fenstersysteme
- E-Mobilität (Vorrüstung an allen Stellplätzen)
- Toplage mit optimaler Infrastruktur
- Repräsentativ mit hervorragender Sichtbarkeit
- Inmitten eines Umfelds mit starken Playern
- Direkt angeschlossenes Business-Hotel
- Mehrere Kitas im direkten Umfeld
Arbeiten am Kisselberg
PAVO liegt im Innovationspark Kisselberg – einem der gefragtesten Gewerbestandorte von Mainz. Direkt an der Saarstraße gelegen, bietet der Standort eine exzellente Sichtbarkeit und optimale Erreichbarkeit: Der Mainzer Hauptbahnhof ist in wenigen Minuten erreichbar, der ÖPNV mit Bus- und Straßenbahnanbindung liegt direkt vor der Tür. Auch der Anschluss an die Autobahnen A60, A63 und A643 sorgt für beste regionale und überregionale Anbindung. In direkter Nachbarschaft befinden sich der Campus der Johannes-Gutenberg-Universität, die Hochschule Mainz sowie zahlreiche Einrichtungen aus den Bereichen Forschung, Technologie und Life Science – ein innovatives Umfeld, das von Synergien lebt. Mit dem benachbarten Businesshotel, verschiedenen Kantinen, Kitas und einer durchdachten Infrastruktur ist der Standort bestens aufgestellt für moderne Arbeitswelten. Unternehmen, die hier ansiedeln, profitieren von einem dynamischen Netzwerk und der Nähe zu Wissenschaft, Wirtschaft und Verwaltung – mitten in einer der zukunftsorientiertesten Lagen von Mainz.
Optimale Erreichbarkeit
- ÖPNV-Haltestelle: 1 Minute
- Hauptbahnhof: 5 Minuten
- Autobahnring: 5 Minuten
- Flughafen: 30 Minuten
- Stadtzentrum: 10 Minuten
Sie haben Interesse oder Fragen zu dem Objekt?
Besichtigung und Beratung jederzeit gerne nach Vereinbarung.













